Skip to content
STUDIO

STUDIO

Ferdinando Ianuale Architect

  • Home
  • Architecture
  • Landscape
  • Street Art
  • Stories
  • Contacts
  • Credits

FDS#02

QUEENSBRIDGE ROAD , London N11, Holloway Road –

  • Home Refurbishment
  • Collaboration as Project Manager for a refurbishment of a 4 bedroom house with FDS, project by Paperhouse Architects
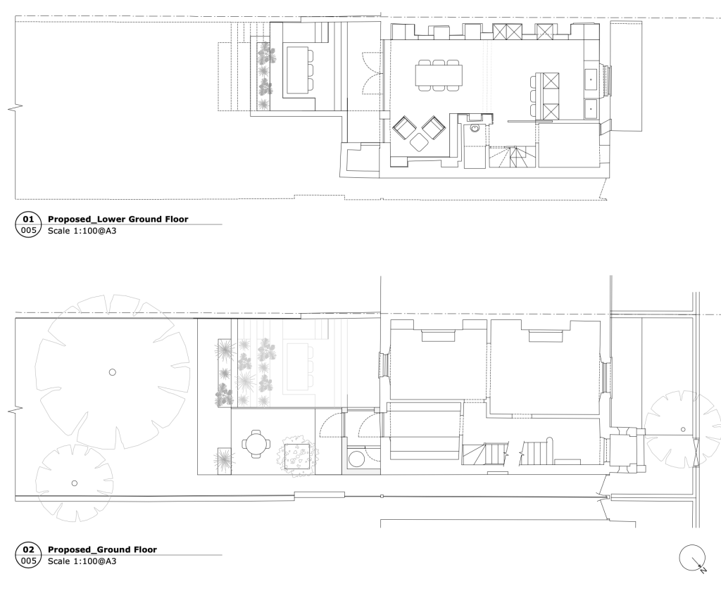
Floor plan
Rear terrace
Rear terrace
Kitchen
Wall kitchen

Share this:

  • Share on X (Opens in new window) X
  • Share on Facebook (Opens in new window) Facebook
Like Loading...
STUDIO, Website Built with WordPress.com.
Privacy & Cookies: This site uses cookies. By continuing to use this website, you agree to their use.
To find out more, including how to control cookies, see here: Cookie Policy
    • STUDIO
    • Sign up
    • Log in
    • Copy shortlink
    • Report this content
    • Manage subscriptions
 

Loading Comments...
 

    %d