Skip to content
STUDIO

STUDIO

Ferdinando Ianuale Architect

  • Home
  • Architecture
  • Landscape
  • Street Art
  • Stories
  • Contacts
  • Credits

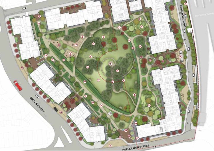
SLD#06

COLLABORATION WITH STANDERWICK LAND DESIGN – 2019/2024

BLACKWALL REACH PHASE 3, TOWER HAMLETS, LONDON – UK

  • Urban Regeneration – Central Park “The Green”
  • RIBA Stage 1-4 in collaboration with CF Moller Architects.
Render by CF Moller Architects
Render by CF Moller Architects
Render by CF Moller Architects
Render by CF Moller Architects
Render by CF Moller Architects

Share this:

  • Share on X (Opens in new window) X
  • Share on Facebook (Opens in new window) Facebook
Like Loading...
STUDIO, Website Built with WordPress.com.
Privacy & Cookies: This site uses cookies. By continuing to use this website, you agree to their use.
To find out more, including how to control cookies, see here: Cookie Policy
    • STUDIO
    • Sign up
    • Log in
    • Copy shortlink
    • Report this content
    • Manage subscriptions
 

Loading Comments...
 

    %d